Bifamiliare in vendita

Marene, Via Cuneo
€ 270.000
7 locali 7 locali
272 Mq 272 Mq
2 bagni 2 bagni

Bifamiliare in vendita

Marene, Via Cuneo

Descrizione annuncio

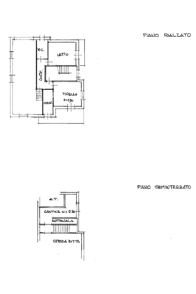
In posizione comoda ai principali servizi del Comune di Marene, proponiamo in vendita bifamiliare disposta su due livelli, ideale per chi è alla ricerca di ampi spazi, comfort e versatilità abitativa. L’immobile, di circa 272 mq complessivi, è attualmente suddiviso in due appartamenti indipendenti.
Al piano terra rialzato troviamo un bilocale composto da soggiorno con cucinotto, camera da letto matrimoniale e bagno finestrato.
Al piano superiore si sviluppa un ampio appartamento composto da cucina, soggiorno, due camere da letto, ripostiglio e un’ulteriore stanza facilmente adattabile in base alle diverse esigenze.
Entrambe le unità godono di sfoghi esterni tramite balconi e terrazzi pertinenziali. Completa la proprietà un ampio giardino arricchito da piscina interrata, ideale per momenti di relax all’aperto.
A servizio dell’immobile sono presenti quattro box auto, di cui uno di grandi dimensioni, adatto anche a camper o camion, oltre alle cantine pertinenziali e al sottotetto di proprietà, che offrono ulteriore spazio di deposito.


Il riscaldamento è autonomo a metano con radiatori.


Attualmente, l’unità al piano terra rialzato è occupata, mentre l’appartamento al piano superiore è libero.


Soluzione ideale per due nuclei familiari, o per chi cerca una casa spaziosa in un contesto tranquillo ma ben servito.

Ogni agenzia ha un proprio titolare ed è autonoma. - Le presenti informazioni non costituiscono elemento contrattuale.

Mostra tutto

Nelle vicinanze

Scuole Scuole
Scuole
350 m
Farmacia Farmacia
Farmacia
540 m
Ristoranti Ristoranti
Ristorante Hotel Residence Ramè
880 m
Mostra tutto

Caratteristiche

Rif.:
61158819
Piano:
Su più livelli di 3
Totale piani:
3
Box:
4
Balconi:
3
Terrazzi:
2
Mostra tutto
Prezzo Prezzo
€ 270.000
Rata mutuo Rata mutuo
€ 1.261 / mese
Spese annue Spese annue
€ 0
Proponi il tuo prezzoProponi il tuo prezzo

Classe Energetica

G
G
G
G
G
G
G
G
G
EP globale non rinnovabile:
239.61 kW h/m² anno
EP globale rinnovabile:
0.94 kW h/m² anno
EP invernale del fabbricato:
EP estiva del fabbricato:
Anno di costruzione:
1978
Riscaldamento:
Autonomo
Tipo impianto:
A radiatori
Tipo alimentazione:
Metano

Ti interessa visionare l'immobile?

Fissa un appuntamento  Fissa un appuntamento

Richiedi informazioni

Clicca su Leggi per aprire l'informativa
* Questi campi sono obbligatori

Calcola il tuo mutuo

Semplice e senza impegno
Anticipo

( % )
Mutuo

( % )

pochi semplici passi

inserisci i tuoi dati
Questionario completato
Grazie per aver richiesto un appuntamento senza impegno con un nostro Consulente del Credito e Assicurativo.

Hai inserito correttamente tutti i dati necessari e a breve riceverai una e-mail con un link da convalidare per inviare i tuoi dati.
Affiliato
Studio Marene Sas
Via S. Gallina, 5 12030 Marene (CN)

Il nostro staff


  • Giovanni Battista Fissore
    Affiliato

  • Alberto Caviglia
    Collaboratore

  • Beatrice Grimaldi
    Coordinatrice
Via S. Gallina, 5 12030 Marene (CN)
Zona: Marene - Cavallermaggiore - Cervere
Mostra su mappa
Orari: Dal lunedì al venerdì dalle 09.00 alle 12.30 e dalle 14.30 alle 19.30. Sabato dalle 9.00 alle 12.30 e dalle 14.30 alle 17.00
Affiliato
Studio Marene Sas
Via S. Gallina, 5 12030 Marene (CN)

2026 Tecnocasa Franchising S.p.A. - P. IVA 08365160152 - Via Monte Bianco 60/A 20089 Rozzano (MI). Ogni agenzia ha un proprio titolare ed è autonoma. Privacy policy | Policy utilizzo | Cookie policy